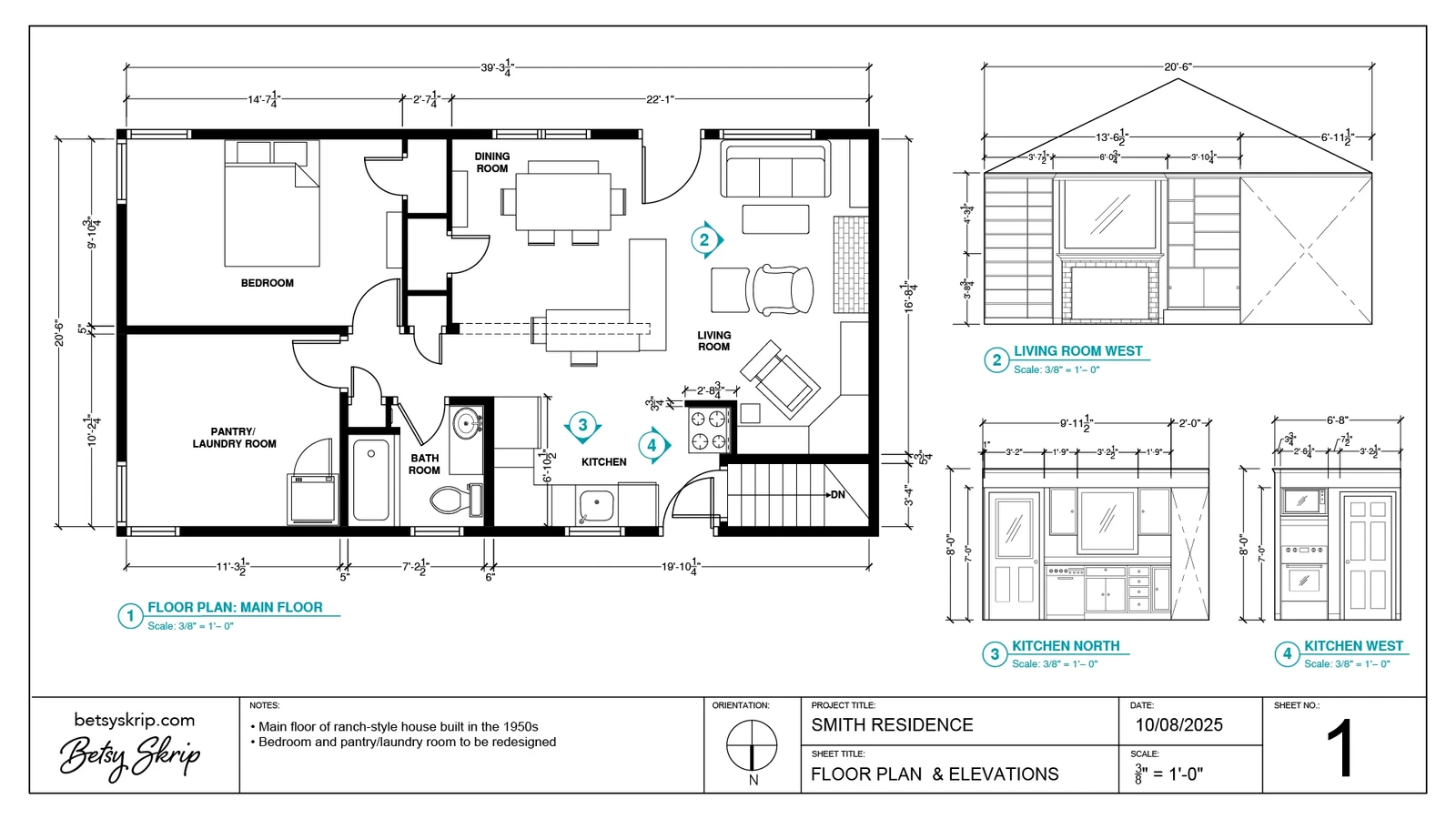
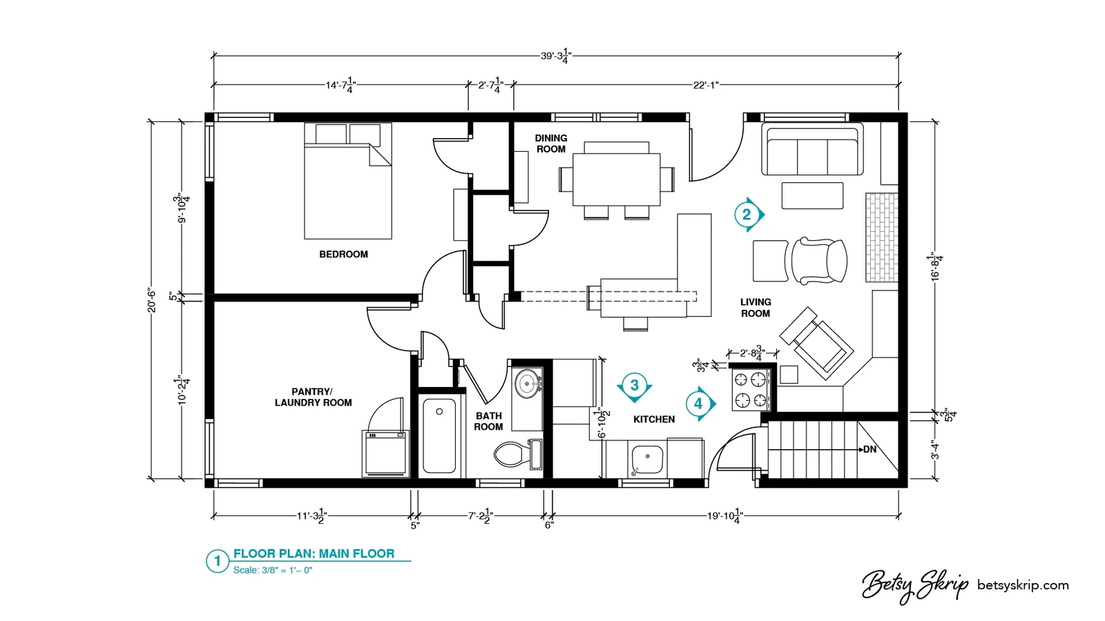
AutoCAD Floor Plan and Elevations

Floor plan and elevations created for a client who wants renovations done to parts of their house. I manually measured the house interior, created the AutoCAD schematics, and then cleaned up the drawings in Illustrator. Next steps include creating a 3D model from the 2D plans.